
このページでは、
暮らしに快適さ、健やかさ、安全性、長寿命を支える住まいのスペック。
予算を大切に考えたプランニングと
構造材には宮城県産の無垢材をはじめ、
塗り壁や内装材も化学物質を含まない
自然から生まれ、自然に還る。
構造材には宮城県産の無垢材をはじめ、
塗り壁や内装材も化学物質を含まない
空気の質の違いをすぐに感じ取れる
自然から生まれ、自然に還る。
誠実な素材選びを実践しています。
化学物質に敏感な方や
化学物質調査にも対応するなど
2013年4月5日測定 仙台市S邸データ
※表は横にスクロールしてご覧いただけます
| 測定項目(単位:μg/m3) | 仙台市S邸データ 測定結果 | |||
|---|---|---|---|---|
| 居間 | 子ども部屋 | 外気 | ||
| 厚生労働省指針値対象物質 | トルエン(指針値:260) | 24.6 | 24.1 | 6.7 |
| エチルベンゼン(指針値:3800) | 21.7 | 20.8 | 0.9 | |
| キシレン(指針値:870) | 19.0 | 18.4 | 2.1 | |
| スチレン(指針値:220) | 6.0 | 6.7 | 0.5未満 | |
| p-ジクロロベンゼン(指針値:240) | 0.8 | 0.7 | 0.5未満 | |
| テトラデカン(指針値:330) | 1.1 | 1.0 | 0.5未満 | |
| ホルムアルデヒド(指針値:100) | 22.9 | 23.5 | 3.1 | |
| アセトアルデヒド(指針値:48) | 78.4 | 81.6 | 3.4 | |
| フタル酸ジ-n-ブチル(指針値:220) | 1.0未満 | 1.0未満 | 1.0未満 | |
| フタル酸ジ-2-エチルヘキシル(指針値:120) | 0.1未満 | 0.1未満 | 0.1未満 | |
| クロルビリホス(指針値:1) | 0.1未満 | 0.1未満 | 0.1未満 | |
| ダイアジノン(指針値:0.29) | 0.1未満 | 0.1未満 | 0.1未満 | |
| フェノプカルプ(指針値:33) | 0.1未満 | 0.1未満 | 0.1未満 | |
| 脂肪族炭化水素類 | n-ヘキサン | 12.8 | 11.5 | 2.0 |
| 2,4-ジメチルぺンタン | 0.5未満 | 0.5未満 | 0.5未満 | |
| イソオクタン | 0.5未満 | 0.5未満 | 0.6 | |
| ヘプタン | 5.6 | 5.2 | 0.7 | |
| オクタン | 4.4 | 4.2 | 0.5未満 | |
| ノナン | 4.6 | 4.7 | 1.3 | |
| デカン | 0.5未満 | 0.5未満 | 4.7 | |
| ウンデカン | 0.5未満 | 0.5未満 | 15.1 | |
| ドデカン | 15.0 | 18.5 | 9.9 | |
| トリデカン | 1.7 | 1.8 | 0.9 | |
| ペンタデカン | 0.5未満 | 0.5未満 | 0.5未満 | |
| ヘキサデカン | 0.5未満 | 0.5未満 | 0.5未満 | |
| 芳香族炭化水素類 | ベンゼン | 2.0 | 2.0 | 2.1 |
| m-エチルトルエン | 2.1 | 2.1 | 1.0 | |
| p-エチルトルエン | 1.3 | 1.3 | 0.5 | |
| 1,3,5-トリメチルベンゼン | 1.5 | 1.5 | 0.6 | |
| o-エチルトルエン | 1.1 | 1.2 | 0.5 | |
| 1,2,4-トリメチルベンゼン | 5.3 | 5.4 | 2.0 | |
| 1,2,3-トリメチルベンゼン | 1.2 | 1.3 | 0.5未満 | |
| 1,2,4,7-テトラメチルベンゼン | 0.6 | 0.7 | 0.5未満 | |
| テルペン類 | α-ピネン | 135.0 | 1150.0 | 3.4 |
| β-ピネン | 39.2 | 35.7 | 0.5未満 | |
| D-リモネン | 369.0 | 350.0 | 1.0 | |
| ハロゲン類 | ジクロロメタン | 2.0 | 1.8 | 1.9 |
| クロロホルム | 0.5未満 | 0.5未満 | 0.5未満 | |
| 1,2-ジクロロエタン | 0.5未満 | 0.5未満 | 0.5未満 | |
| トリクロロエチレン | 0.5未満 | 0.5未満 | 0.5未満 | |
| 1,2-ジクロロプロパン | 0.5未満 | 0.5未満 | 0.5未満 | |
| プロモジクロロメタン | 0.5未満 | 0.5未満 | 0.5未満 | |
| ジブロモジクロロメタン | 0.5未満 | 0.5未満 | 0.5未満 | |
| テトラクロロエチレン | 0.5未満 | 0.5未満 | 0.5未満 | |
| エステル類 | 酢酸エチル | 14.8 | 13.7 | 2.5 |
| 酢酸ブチル | 4.3 | 4.1 | 0.5未満 | |
| アルデヒド・ケトン類 | アセトン | 46.4 | 41.9 | 4.5 |
| メチルエチルケトン | 136.0 | 120.0 | 2.1 | |
| メチルイソブチルケトン | 4.7 | 4.4 | 0.5未満 | |
| ノナナール(参考値) | 0.5未満 | 0.5未満 | 0.5未満 | |
| デカナール(参考値) | 0.5未満 | 0.5未満 | 0.5未満 | |
| アルコール類その他 | エタノール | 29.5 | 26.4 | 5.0 |
| イソプロピルアルコール | 14.8 | 12.5 | 0.5 | |
| 1-プロパノール | 0.5未満 | 0.5未満 | 0.5未満 | |
| 1-プタノール | 11.9 | 12.7 | 0.5未満 | |
化学物質に関する調査は
それ以外にも建築に使用される
日本の暮らしに欠かせないのが、
佐七建設では伝統技術に最新の知見を加え、
将来を見据えながら、
佐七建設では伝統的な木造技術に最新の構造計算を組み合わせ、耐震等級2・3に対応する堅牢な住まいを提供しています。
家族の安全を第一に、安心して長く暮らせる住まいを実現します。佐七建設では、国産無垢材のしなやかさと強さを活かし、綿密な構造計算に基づいた耐震設計を行っています。伝統の木組み技術と最新の耐震基準を融合させることで、もしもの揺れにも負けない強固な骨組みを実現。世代を超えて家族を守り続ける、安全で確かな住まいをつくります。
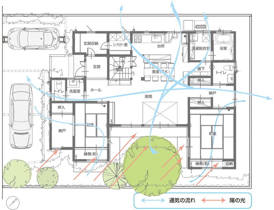
佐七建設の家は外断熱工法や適切な気密性能に
無垢材や自然素材が持つ調湿性とも相まって、
※ 佐七の家:N邸、夫婦+子ども1人、85.58m2(25.8坪)
UA値:0.48W/㎡K、C値:0.3cm2/m2、冷暖房設備:床下エアコン1台+床上エアコン1台
※ 電気料金は2024年1月~12月の実測値として施主さまより提供。
※ 冬の室内気温と外気温については2024年1月16日~17日に施主さま宅で1時間ごとに記録(エアコンを常時19℃に設定)。
ご検討時期からご契約、建築、完成、
「理想の住まい」が完成するまでの、
建築会社に問い合わせや資料請求。佐七建設では定期的に各種見学会を開催しています。
無垢材の触り心地や温かみ、断熱性能、造など実際に見て、触れて、感してみてください。
土地を決めるにあたって「想像以上に時間が掛かった」という声を数多く伺います。
希望の場所や予算が決まっていれば積極的に行動しましょう。また年収や資産などを元に、購入金額を計算しましょう。土地探しや予算に関する相談は佐七建設でも承ります。
お客さまと一緒に実際に希望の土地を訪れ、風土、気候、周辺環境など立地条件を確かめます。土地契約前の注意事項などもご説明します。
佐七建設オリジナルBOOK「家づくりカルテ」にご家族一人ひとりの好みやライフスタイルをご記入いただきます。こちらを元に外観デザインや間取り、仕様などをご提案いたします。
基本設計をペースにして概算見積書をご提出いたします。そして順次、融資額、返済計画などを煮詰めていきます。
プランをはじめ素材、仕様や設備なども仮設定。実施設計に基づいて本見積書を作成、設計図書の整理、工事請負契約書の作成などを行います。
ここから費用が発生します。
最終的な設計図書及び見積書を確認の上、工事請負契約書を締結。また、建築確認申請書類を提出します。
現場での家づくりが始まります。工事期間中、できるだけ現地に足を運んでみてください。漆喰塗りなど、実際に家づくりに参加することも可能です。
最終的な設計図書及び見積書を確認の上、工事請負契約書を締結。また、建築確認申請書類を提出します。
新しい我が家での生活が始まります。その後も定期点検やメンテナンスなど、佐七建設が皆さまの快適な暮らしをサポートいたします。
住み心地の確認、暮らしのアドバイス。木材の反り、曲がり、建具の調整など季節変化に伴う部位の確認。換気設備をはじめ定期的に施主さまに行っていただくメンテナンスの確認など。
設備機器の不具合などの確認。消耗部品などの交換。
屋根、外壁、サッシ周りなどの劣化状況の確認。必要に応じて建物メンテナンスなどのアドバイス・相談。※以降、5 年おきに点検を実施。